Appartamenti in edificio di nuova costruzione – Peziè – Cortina d’Ampezzo
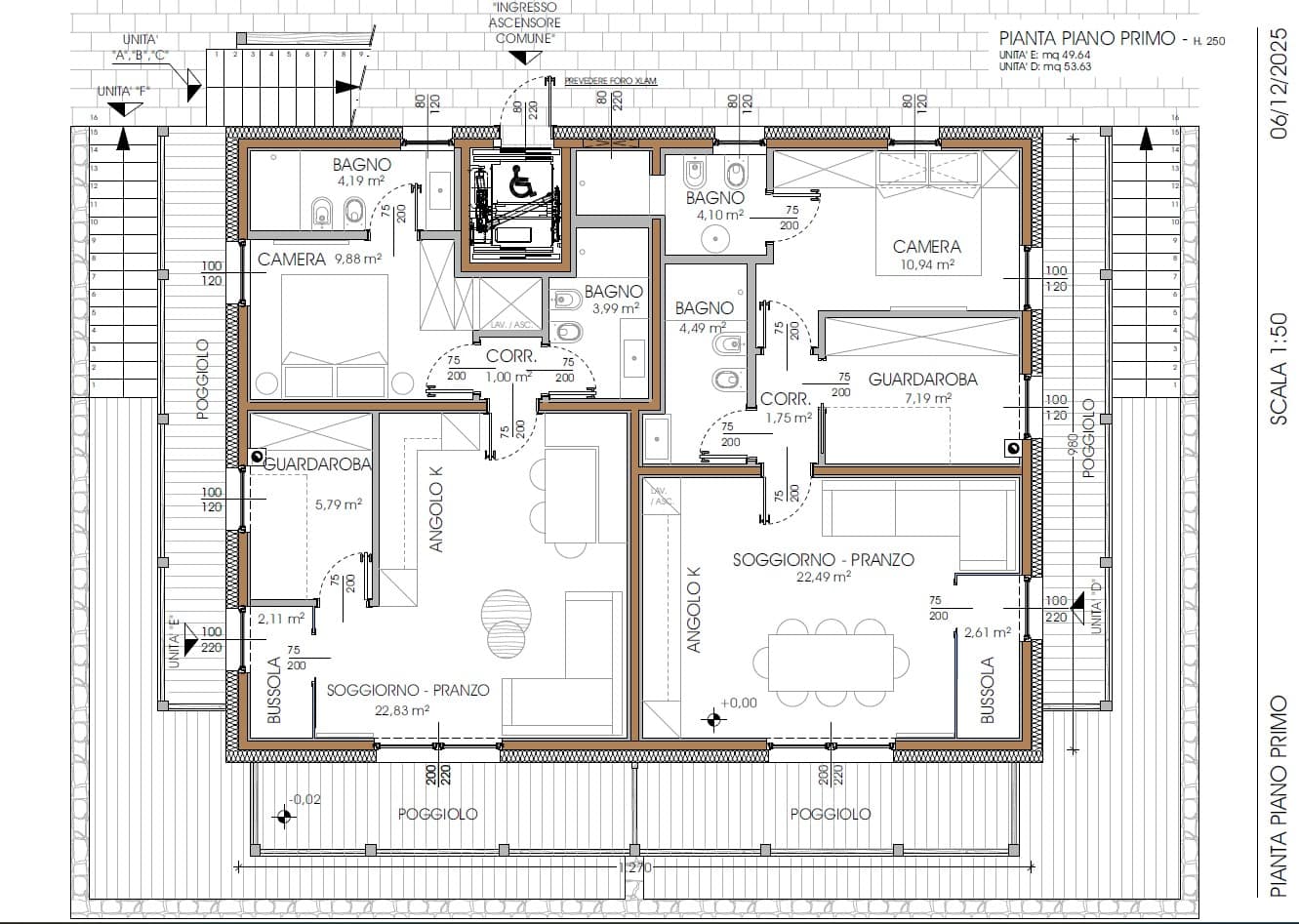
Nel cuore di una delle zone più panoramiche di Cortina d’Ampezzo, proponiamo uno/due appartamenti in vendita all’interno di un esclusivo fabbricato di nuova costruzione, composto da sole 6 unità abitative in Classe Energetica A4, con consegna “chiavi in mano” per una metratura di circa 80 mq. commerciali.
L’immobile, progettato nel pieno rispetto dell’architettura tradizionale locale, richiama l’eleganza senza tempo di un antico fienile ampezzano, fondendosi armoniosamente con il paesaggio circostante.
Caratteristiche principali:
- Zona Peziè, tranquilla, soleggiata e ben collegata a piedi con la pedonale ex ferrovia
- Vendita su progetto con capitolato completo (il fabbricato sarà a tetto a fine dicembre ‘25)
- Consegna “chiavi in mano”, comprensiva di tutte le finiture
- Appartamenti al primo piano, con agibilità garantita
- Non arredati, per lasciare libertà nella personalizzazione degli interni
- Cantine private e posti auto esterni assegnati, ascensore per scendere nei locali interrati
- Struttura di soli 6 appartamenti, ingresso indipendente per garantire esclusività e privacy
- Edificio ad alta efficienza energetica (Classe A)
- L’immobile sarà finito nell’autunno 2026.
Questa è un’opportunità unica per chi desidera una residenza moderna e confortevole, senza rinunciare al fascino tipico della tradizione ampezzana.
La richiesta dell’immobile identificato in colore verde è di € 1.500.000,00, mentre per l’immobile evidenziato in colore giallo è di € 1.200.000,00. I pagamenti sono ad avanzamento lavori. Tassazione in parte ad iva in parte a tassa di registro.











